Verkocht onder voorbehoud:Sophiastraat 7, 2316 PH Leiden - Foto
Verkocht onder voorbehoud
+26

Sophiastraat 7 2316 PH Leiden € 465.000,- k.k.

  • Woonhuis
  • 4 kamers
  • 3 slaapkamers
  • 1 badkamers
  • Bouwjaar 1916
  • 68 m² perceeloppervlakte
  • 82 m² gebruiksoppervlakte
  • C Energielabel C

Beschrijving

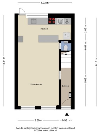
Gezellige, goed onderhouden, lichte eengezinswoning (ca. 82 m2 woonoppervlakte) met een achtertuin op het zuiden en een Energielabel C.
Deze tussenwoning ligt nabij het centrum op loopafstand van het Huigpark, via het park kunt u lopend de Leidse binnenstad in met al zijn gezellige winkels, musea en uit gaans gelegenheden, met de fiets bent u binnen 5 minuten op Centraal station. ook zeer gunstig gelegen ten opzichte van het Bio Sciencepark, gebouwen van de universiteit en het LUMC. In de wijk heeft u nog enkele buurtwinkels, dus een lekkere centrale ligging in een rustige straat. De woning is geheel voorzien van dubbel glas, verwarming via eigen CV, combi-ketel merk Vaillant bj. ca. 2023, lichte woonkamer, de moderne open keuken is voorzien van inbouwapparatuur, gasten toilet.
1e verdieping:
Overloop, 3 slaapkamers en badkamer met toilet, douche en wastafel.
de opstelplaats voor de cv ketel is ook op de 1e verdieping.
Berg vliering te bereiken met ladder
De achtertuin is circa 20m2 en op het zuiden

Kaart

Kenmerken

Overdracht

Referentienummer
677
Vraagprijs
€ 465.000,- k.k.
Status
Verkocht onder voorbehoud
Aanvaarding
In overleg
Aangeboden sinds
Dinsdag 2 september 2025
Laatste wijziging
Vrijdag 17 oktober 2025

Bouw

Type object
Woonhuis, eengezinswoning, tussenwoning
Soort bouw
Bestaande bouw
Bouwperiode
1916
Dakbedekking
Dakpannen
Type dak
Zadeldak
Isolatievormen
Dakisolatie
Dubbel glas

Oppervlaktes en inhoud

Perceeloppervlakte
68 m²
Woonoppervlakte
82,2 m²
Inhoud
291 m³

Indeling

Aantal bouwlagen
3
Aantal kamers
4 (waarvan 3 slaapkamers)
Aantal badkamers
1 (en 1 apart toilet)

Locatie

Ligging
Aan rustige weg
In woonwijk

Tuin

Type
Achtertuin
Hoofdtuin
Ja
Oriëntering
Zuiden
Staat
Normaal

Energieverbruik

Energielabel
C

CV ketel

Warmtebron
Gas
Bouwjaar
2023
Combiketel
Ja
Eigendom
Eigendom

Uitrusting

Warm water
CV-ketel
Verwarmingssysteem
Centrale verwarming
Ventilatie methode
Mechanische ventilatie
Badkamervoorzieningen
Douche
Toilet
Wastafel
Wastafelmeubel
Zitbad
Heeft kabel-tv
Ja
Tuin aanwezig
Ja
Telefoonaansluiting aanwezig
Ja
Beschikt over een internetverbinding
Ja
Heeft ventilatie
Ja

Kadastrale gegevens

Kadastrale aanduiding
Leiden K 1079
Perceeloppervlakte
68 m²
Omvang
Geheel perceel
Eigendomsituatie
Eigen grond