Nieuw in verkoop:De Savornin Lohmanplantsoen 35, 2253 VM Voorschoten - Foto
Nieuw in verkoop
+40

De Savornin Lohmanplantsoen 35 2253 VM Voorschoten € 625.000,- k.k.

  • Woonhuis
  • 6 kamers
  • 5 slaapkamers
  • 1 badkamers
  • Bouwjaar 1973
  • 166 m² perceeloppervlakte
  • 151 m² gebruiksoppervlakte
  • C Energielabel C

Beschrijving

In de gewilde wijk "Noord Hofland", is deze ruime eengezinswoning met 5 slaapkamer, garage en zonnige achtertuin op het zuidwesten gelegen, nabij lagere school, winkel centrum en het Ns station "de Vink".

indeling:
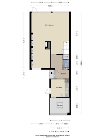
Entree, ruime hal met het toilet en de meterkast, de garage is gedeeltelijk nu de Keuken, met deur naar de voortuin en deur naar het voorgedeelte van de garage waar nu nog berging/ opslag is.
Ruime woonkamer in grote L- vorm, met open haard en deur naar de zonnige achtertuin op het zuidwesten.
Via vaste trap naar de 1e verdieping:
Overloop, kleine voorkamer met frans balkon, voorkamer, achterkamer en hoofdslaapkamer met deur naar het achterbalkon op het zuidwesten, inpandige badkamer met wastafel, toilet en ligbad.
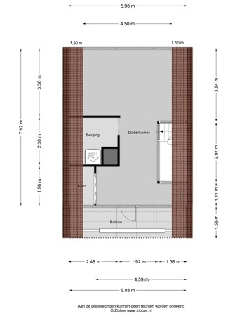
2e verdieping:
Via vaste trap naar de 2e verdieping, deze is voorzien van deur en dubbelglas, thans als 1 grote ruimte in gebruik, maar meerdere ruimtes zijn te mrealiseren, voorbalkon is ook nog te betrekken bij de woonoppervlakte, tussen in is de was en stookruimte gelegen.

Bijzonderheden:
niet bewoners clausule zal worden toegepast
projectnotaris Boom Notariaat

Kaart

Kenmerken

Overdracht

Referentienummer
722
Vraagprijs
€ 625.000,- k.k.
Status
Nieuw in verkoop
Aanvaarding
In overleg
Aangeboden sinds
Woensdag 18 februari 2026

Bouw

Type object
Woonhuis, eengezinswoning, tussenwoning
Soort bouw
Bestaande bouw
Bouwperiode
1973
Dakbedekking
Bitumen
Type dak
Dwarskap
Isolatievormen
Grotendeels dubbel glas

Oppervlaktes en inhoud

Perceeloppervlakte
166 m²
Woonoppervlakte
151 m²
Inhoud
563 m³
Oppervlakte overige inpandige ruimten
8 m²
Oppervlakte gebouwgebonden buitenruimte
13 m²

Indeling

Aantal bouwlagen
3
Aantal kamers
6 (waarvan 5 slaapkamers)
Aantal badkamers
1

Locatie

Ligging
Aan rustige weg
Dichtbij openbaar vervoer
In woonwijk

Tuin

Type
Achtertuin
Oriëntering
Zuid-west
Staat
Verwaarloosd
Tuin 2 - Type
Voortuin
Tuin 2 - Oriëntering
Noord-oost
Tuin 2 - Staat
Normaal

Energieverbruik

Energielabel
C

CV ketel

Warmtebron
Gas
Combiketel
Ja
Eigendom
Eigendom

Uitrusting

Warm water
CV-ketel
Verwarmingssysteem
Centrale verwarming
Badkamervoorzieningen
Ligbad
Toilet
Wastafel
Wastafelmeubel
Parkeergelegenheid
Aangebouwde stenen garage
Heeft een balkon
Ja
Heeft kabel-tv
Ja
Heeft een frans balkon
Ja
Tuin aanwezig
Ja
Heeft een garage
Ja
Telefoonaansluiting aanwezig
Ja
Beschikt over een internetverbinding
Ja

Kadastrale gegevens

Kadastrale aanduiding
Voorschoten C 1017
Perceeloppervlakte
166 m²
Eigendomsituatie
Eigen grond