Koop:Essenlaan 24, 2251 AT Voorschoten - Foto
+9

Essenlaan 24 2251 AT Voorschoten € 950.000,- k.k.

  • Bouwgrond
  • 2.080 m² perceeloppervlakte

Beschrijving

Uniek, op loopafstand van het gezellige centrum, een mooie bouwkavel van 2080m2 aan vaarwater en mogelijkheid om insteekhaven te maken
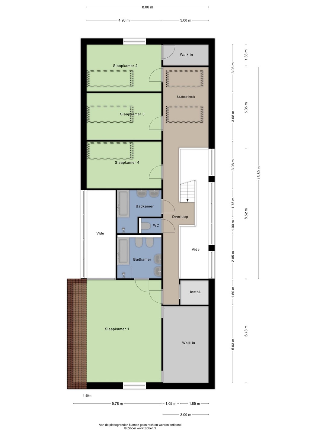
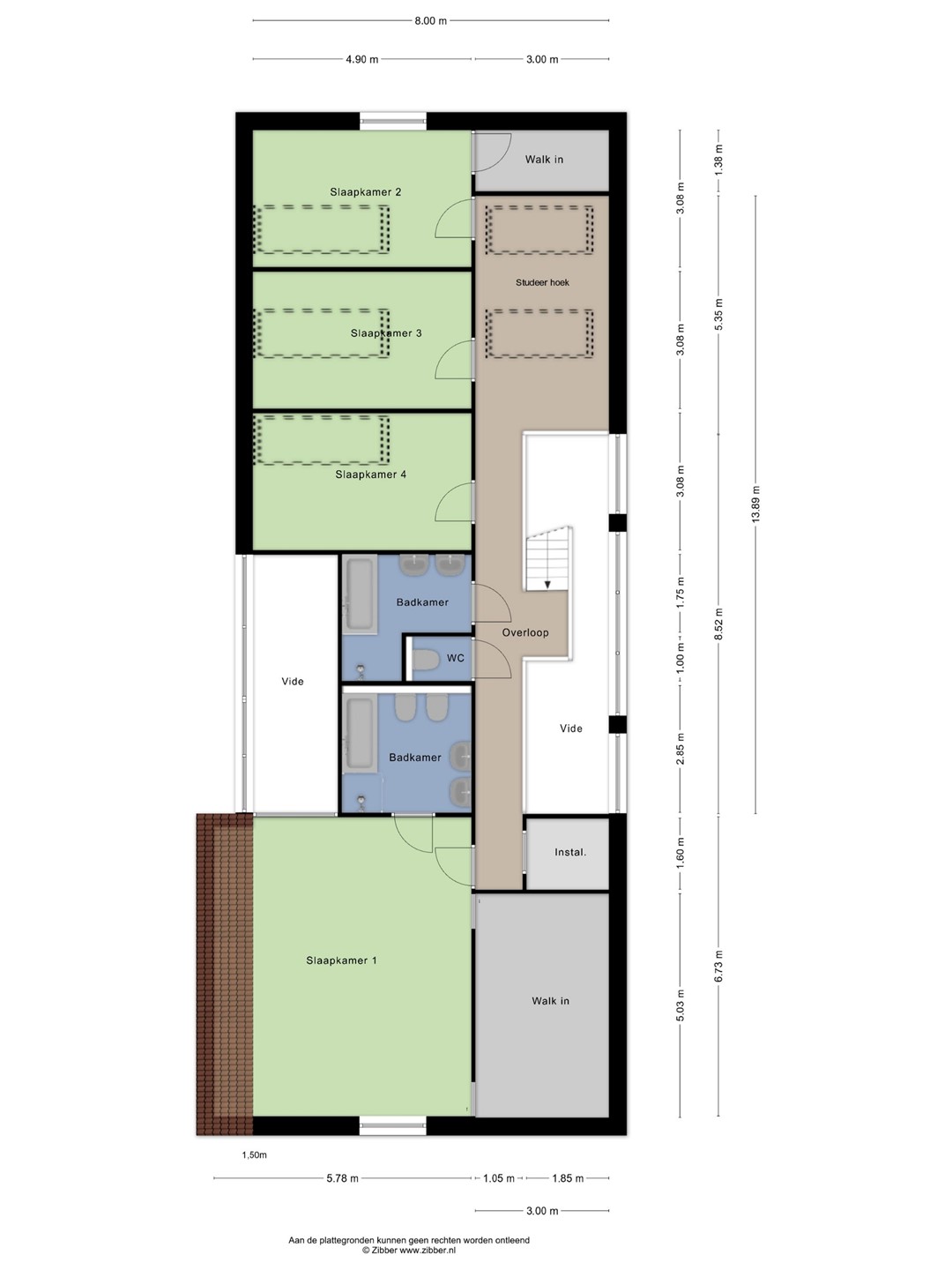
De nieuw te bouwen vrijstaande villa op mooi vrij gelegen bouwperceel. Er is een bouwplan getekend en vergund. De bouwkosten zijn voor de nieuwe eigenaar. De totale woonoppervlakte inclusief garage zijn circa 320m2. Dit plan kan met de architect besproken worden. De ligging op de kavel, grootte en hoogte liggen vast. De bouwvergunning ( omgevingsvergunning ) is verleend Het perceel is aan 3 zijden omgeven door water, er is de mogelijkheid om een boot aan de tuin aan te leggen. De prijs voor de grond is € 950.000,00, Een eigen aannemer dient zelf geselecteerd te worden. Het betreft hier een mooie kans om een eigen nieuw groot huis op een mooie kavel te realiseren. De Essenlaan, een zijstraat van de Veurseweg, is een mooi lommerrijke laan, autoluw en gelegen dichtbij het centrum.

Doorsnede tekeningen en de omgevingsvergunning zijn aanwezig.

Kaart

Kenmerken

Overdracht

Referentienummer
744
Vraagprijs
€ 950.000,- k.k.
Inrichting
Niet gestoffeerd
Inrichting
Niet gemeubileerd
Aanvaarding
In overleg
Aangeboden sinds
Dinsdag 21 april 2026

Bouw

Type object
Bouwgrond
Soort bouw
Bestaande bouw

Oppervlaktes en inhoud

Perceeloppervlakte
2.080 m²

Locatie

Ligging
Aan rustige weg
Aan vaarwater
In woonwijk

Tuin

Type
Tuin rondom
Hoofdtuin
Ja
Oriëntering
Zuid-west
Staat
Dient nog te worden aangelegd.

Kadastrale gegevens

Kadastrale aanduiding
Voorschoten B 11499
Perceeloppervlakte
2.080 m²
Omvang
Geheel perceel
Eigendomsituatie
Eigen grond

Media

Foto's

Plattegronden