Verkocht:Franz Lisztlaan 16, 2253 HL Voorschoten - Foto
Verkocht
+50

Franz Lisztlaan 16 2253 HL Voorschoten

  • Woonhuis
  • 6 kamers
  • 5 slaapkamers
  • 1 badkamers
  • Bouwjaar 1961
  • 155 m² perceeloppervlakte
  • 155 m² gebruiksoppervlakte
  • A Energielabel A

Beschrijving

Zoekt u een ruime eengezinswoning in het heerlijke Voorschoten? Deze prachtige woning met 5 slaapkamers, praktisch nieuwe keuken en door de uitbouw zeer ruime woonkamer en wat denkt u van deze prachtige badkamer en ook nog eens op een super lokatie in een rustige straat. Dit moet je gezien hebben.

De woning is een aantal jaar geleden geheel gerenoveerd en is zeer gunstig gelegen in de geliefde en rustige woonwijk Adegeest. Voor de woning ligt een enorm grasveld waar kinderen naar hartenlust kunnen spelen. Verder beschikt de woning over een Luxe keuken, badkamer en 4 slaapkamers. In 2017 zijn de leidingen en de elektra vervangen en is het gehele huis voorzien van nieuwe plafonds, zijn alle muren en plafonds gestukt en de kamers voorzien van vloeren. Het huis is volledig voorzien van dubbel glas. De woning ligt op loopafstand van openbaar vervoer en buurtwinkels. Het gezellige historische centrum van Voorschoten, sporthal- en velden, basisscholen, de British School, kinderdagverblijf en uitvalswegen zijn dichtbij. Veel recreatie mogelijkheden op een steenworp afstand zoals de Vlietlanden, Seringenbos en het strand.

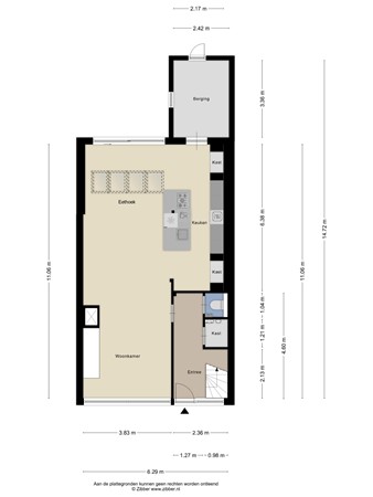
Indeling
Ruime voortuin, entree, ruime hal met toegang naar trapkast/meterkast, toilet en deur naar de woonkamer met open keuken en heerlijke open haard. De woonkamer is door de grote raampartijen zeer licht en voorzien van een prachtige vloer. De tuin aan de achterkant van de woning is door o.a. de schuifpui in de woonkamer te betreden. De open moderne keuken is voorzien van diverse inbouw apparatuur. Gelijk aan de woning vast zit de oorspronkelijk schuur/berging waardoor je vanuit de woning direct de schuur kan bereiken.

Eerste verdieping
Met de vaste trap komt u op de ruime overloop van de eerste verdieping met de toegang deuren naar het tweede separate toilet, badkamer en de twee ruime slaapkamers. De badkamer gelegen aan de achterkant van de woning is voorzien van een ligbad, inloop douche, wastafelmeubel.

Tweede verdieping
Met de vaste trap komt u op de bovenste verdieping die twee slaapkamers telt. Door de dakkapellen aan de voor/achterzijde is een riante slaapkamer ontstaan waar eenvoudig twee slaapkamers gemaakt van kunnen worden. In de 2e slaapkamer is de wasmachine en droger aansluiting.

Bijzonderheden
* nieuwe dakkapel
* zonnen panelen
* energielabel A
* oplevering in overleg
* moderne keuken en badkamer 2017
* ideaal huis voor thuis werkers
* fraai afgewerkte woning
* cv ketel 2017
* vrij uitzicht aan de voorzijde over speelveld

Kaart

Kenmerken

Overdracht

Referentienummer
696
Vraagprijs
€ 739.000,- k.k.
Status
Verkocht
Aanvaarding
In overleg
Aangeboden sinds
Woensdag 1 oktober 2025
Laatste wijziging
Maandag 20 oktober 2025

Bouw

Type object
Woonhuis, eengezinswoning, tussenwoning
Soort bouw
Bestaande bouw
Bouwperiode
1961
Dakbedekking
Bitumen
Dakpannen
Type dak
Zadeldak

Oppervlaktes en inhoud

Perceeloppervlakte
155 m²
Woonoppervlakte
155 m²
Inhoud
552 m³
Oppervlakte overige inpandige ruimten
9 m²

Indeling

Aantal bouwlagen
3
Aantal kamers
6 (waarvan 5 slaapkamers)
Aantal badkamers
1 (en 1 apart toilet)

Locatie

Ligging
Aan park
Aan rustige weg
In woonwijk

Tuin

Type
Achtertuin
Hoofdtuin
Ja
Oriëntering
Zuidoost
Heeft een achterom
Ja
Staat
Normaal
Tuin 2 - Type
Voortuin

Energieverbruik

Energielabel
A

Uitrusting

Ventilatie methode
Mechanische ventilatie
Badkamervoorzieningen
Douche
Ligbad
Wastafel
Heeft kabel-tv
Ja
Tuin aanwezig
Ja
Heeft een garage
Ja
Heeft zonnepanelen
Ja
Heeft ventilatie
Ja

Kadastrale gegevens

Kadastrale aanduiding
Voorschoten A 3918
Perceeloppervlakte
155 m²
Omvang
Geheel perceel