Verkocht onder voorbehoud:Jan Steenlaan 32, 2251 JH Voorschoten - Foto
Verkocht onder voorbehoud
+24

Jan Steenlaan 32 2251 JH Voorschoten € 300.000,- k.k.

  • Appartement
  • 4 kamers
  • 3 slaapkamers
  • 1 badkamers
  • Bouwjaar 1965
  • 70 m² gebruiksoppervlakte
  • D Energielabel D

Beschrijving

Dit is je kans, een 4 kamer appartement op de 3e (top) verdieping, gelegen in de Vlietwijk, met aan de voorzijde en achterzijde een heerlijk zonnig balkon, dit voormalig huurappartement, is al verbouw klaar gemaakt.

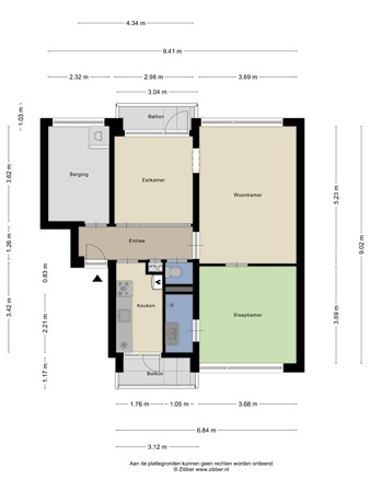
Indeling:
Afgesloten hoofd entree met bellentableau en brievenbussen, met de trap naar de 3e verdieping.
Voordeur, gang met de meterkast en het toilet, dichte keuken met eenvoudig keukenblok en deur naar het balkon op het (zw), kleinste voorkamer met grote vaste kast, tussenkamer met deur naar het voor balkon (no), ruime woonkamer met groot raam en vrij uitzicht, achterkamer met kasten wand en de toegang tot de badkamer met douche en wastafel, en een raampje voor de ventilatie.

Berging op de begane grond en goed te bereiken met een scooter

Bijzonderheden:
geheel voorzien van dubbelglas
energielabel D
open ligging
dichtbij veel groen en het recreatiegebied "Vlietland"

Kaart

Kenmerken

Overdracht

Referentienummer
702
Vraagprijs
€ 300.000,- k.k.
Servicekosten
€ 171,16
Verwarming
€ 65,35
Inrichting
Niet gestoffeerd
Inrichting
Niet gemeubileerd
Status
Verkocht onder voorbehoud
Aanvaarding
In overleg
Aangeboden sinds
Maandag 27 oktober 2025
Laatste wijziging
Maandag 8 december 2025

Bouw

Type object
Appartement, portiekflat
Woonlaag
4e woonlaag
Soort bouw
Bestaande bouw
Bouwperiode
1965
Dakbedekking
Bitumen
Type dak
Platdak
Isolatievormen
Dubbel glas

Oppervlaktes en inhoud

Woonoppervlakte
70 m²
Inhoud
231 m³
Oppervlakte externe bergruimte
5 m²
Oppervlakte gebouwgebonden buitenruimte
6,5 m²

Indeling

Aantal bouwlagen
1
Aantal kamers
4 (waarvan 3 slaapkamers)
Aantal badkamers
1 (en 1 apart toilet)

Locatie

Ligging
Aan rustige weg
In woonwijk

Energieverbruik

Energielabel
D

Uitrusting

Warm water
Elektrische boiler
Verwarmingssysteem
Blokverwarming
Badkamervoorzieningen
Douche
Wastafel
Heeft een balkon
Ja
Heeft kabel-tv
Ja
Glasvezelaansluiting aanwezig
Ja
Beschikt over een internetverbinding
Ja
Heeft schuur/berging
Ja

Vereniging van Eigenaren

Ingeschreven bij de KvK
Ja
Jaarlijkse vergadering
Ja
Periodieke bijdrage
Ja
Reservefonds
Ja
Meer jaren onderhoudsplan
Ja
Onderhoudsverwachting
Ja
Opstal verzekering
Ja

Kadastrale gegevens

Kadastrale aanduiding
Voorschoten B 10804
Perceeloppervlakte
547 m²
Omvang
Appartementsrecht of complex
Eigendomsituatie
Eigen grond