Nieuw in verkoop:Johan Willem Frisolaan 51, 2252 HD Voorschoten - Foto
Nieuw in verkoop
+62

Johan Willem Frisolaan 51 2252 HD Voorschoten € 775.000,- k.k.

  • Woonhuis
  • 6 kamers
  • 5 slaapkamers
  • 1 badkamer
  • Bouwjaar 1957
  • 189 m² perceeloppervlakte
  • 150 m² gebruiksoppervlakte
  • B Energielabel B

Beschrijving

Op een prachtige plek gelegen sfeervolle jaren 50 woning met prachtige voor en zonnige achtertuin op het zuiden. Deze ruime uitgebouwde woning heeft 5 slaapkamers.

De woning ligt bijzonder gunstig t.o.v. station en centrum en heeft bovendien vrij uitzicht aan de voorzijde op een schitterend speelveld. In de buurt van de woning zijn verschillende basisscholen, dicht bij het openbaar vervoer, in de buurt van uitvalswegen (A4/A44) en dicht bij het authentieke centrum van Voorschoten met de gezellige restaurants. Het treinstation van Voorschoten is op loopafstand.

Deze woning is voorzien van ruime woonkamer met schuifpui naar de achtertuin. Aan de achterzijde is een prachtige serre gebouwd waardoor een grote ruimte is ontstaan met een mooie licht inval. Via de schuifpui heeft men toegang tot de zeer zonnige tuin (zuiden). De tuin is fraai aangelegd.

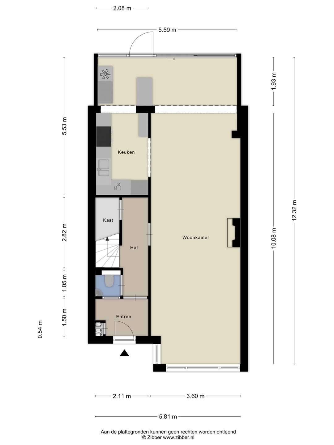
Indeling:

Voortuin, entree, hal/gang met meterkast en toilet, trapkast, woonkamer met open haard en serre en schuifpui naar ruime tuin op het zuiden. Open keuken met diverse inbouwapparatuur.

1e Verdieping: 3 slaapkamers waarvan 2 slaapkamers toegang hebben tot een balkon. Badkamer met douche, bad, toilet en wastafel. De badkamer is gelegen aan de voorzijde van de woning.

2e Verdieping: Overloop met toegang naar cv-ruimte, wasruimte, ruime slaapkamer met dakkapel aan achterzijde en slaapkamer aan voorzijde met dakkapel,

Bijzonderheden:

- Zeer gunstig gelegen t.o.v. station, centrum een uitvalswegen-
- Vrij uitzicht aan voorzijde over speeltuin
- woonkamer met open haard en serre
- zeer zonnige tuinligging (zuiden) daardoor een bijzonder lichte woning!
- 8 zonnepanelen aanwezig
- cv ketel (2022)
- Oplevering in overleg.

Kaart

Kenmerken

Overdracht

Referentienummer
737
Vraagprijs
€ 775.000,- k.k.
Status
Nieuw in verkoop
Aanvaarding
In overleg
Aangeboden sinds
Zaterdag 4 april 2026

Bouw

Type object
Woonhuis, eengezinswoning, tussenwoning
Soort bouw
Bestaande bouw
Bouwperiode
1957
Dakbedekking
Dakpannen
Type dak
Zadeldak
Isolatievormen
Dubbel glas

Oppervlaktes en inhoud

Perceeloppervlakte
189 m²
Woonoppervlakte
150 m²
Inhoud
530 m³
Oppervlakte gebouwgebonden buitenruimte
8 m²

Indeling

Aantal bouwlagen
3
Aantal kamers
6 (waarvan 5 slaapkamers)
Aantal badkamers
1 (en 1 apart toilet)

Locatie

Ligging
Aan rustige weg
In centrum
In woonwijk
Vrij uitzicht

Tuin

Type
Achtertuin
Hoofdtuin
Ja
Oriëntering
Zuid-west
Heeft een achterom
Ja
Staat
Prachtig aangelegd

Energieverbruik

Energielabel
B

CV ketel

CV ketel
Nefit
Warmtebron
Gas
Bouwjaar
2022
Combiketel
Ja
Eigendom
Eigendom

Uitrusting

Warm water
CV-ketel
Verwarmingssysteem
Centrale verwarming
Ventilatie methode
Mechanische ventilatie
Badkamervoorzieningen
Douche
Dubbele wastafel
Ligbad
Heeft een balkon
Ja
Heeft kabel-tv
Ja
Heeft een rookkanaal
Ja
Tuin aanwezig
Ja
Heeft zonnepanelen
Ja
Heeft ventilatie
Ja

Kadastrale gegevens

Kadastrale aanduiding
Voorschoten B 5639
Perceeloppervlakte
189 m²
Omvang
Geheel perceel