Verkocht onder voorbehoud:Rembrandtlaan 4, 2251 GZ Voorschoten - Foto
Verkocht onder voorbehoud
+35

Rembrandtlaan 4 2251 GZ Voorschoten € 585.000,- k.k.

  • Woonhuis
  • 5 kamers
  • 4 slaapkamers
  • 1 badkamer
  • Bouwjaar 1961
  • 144 m² perceeloppervlakte
  • 108 m² gebruiksoppervlakte
  • C Energielabel C

Beschrijving

Heerlijk wonen, nabij de molensloot en de Vliet, in de "Vlietwijk", nabij het oude centrum en op korte afstand van het openbaar vervoer
het recreatiegebied "Vlietland" is met de fiets op korte afstand te bereiken.

Indeling:
Entree, hal/ gang met garderobeplek, trapkast/ meterkast met moderne meterkast, toilet, gezellige lichte woonkamer met open haard, schuifpui en open keuken, de keuken is in L- opstelling en voorzien van inbouwapparatuur, heerlijke tuin met veel privacy, ruime stenen berging met verwarming en elektra, achterom aan de achterzijde.
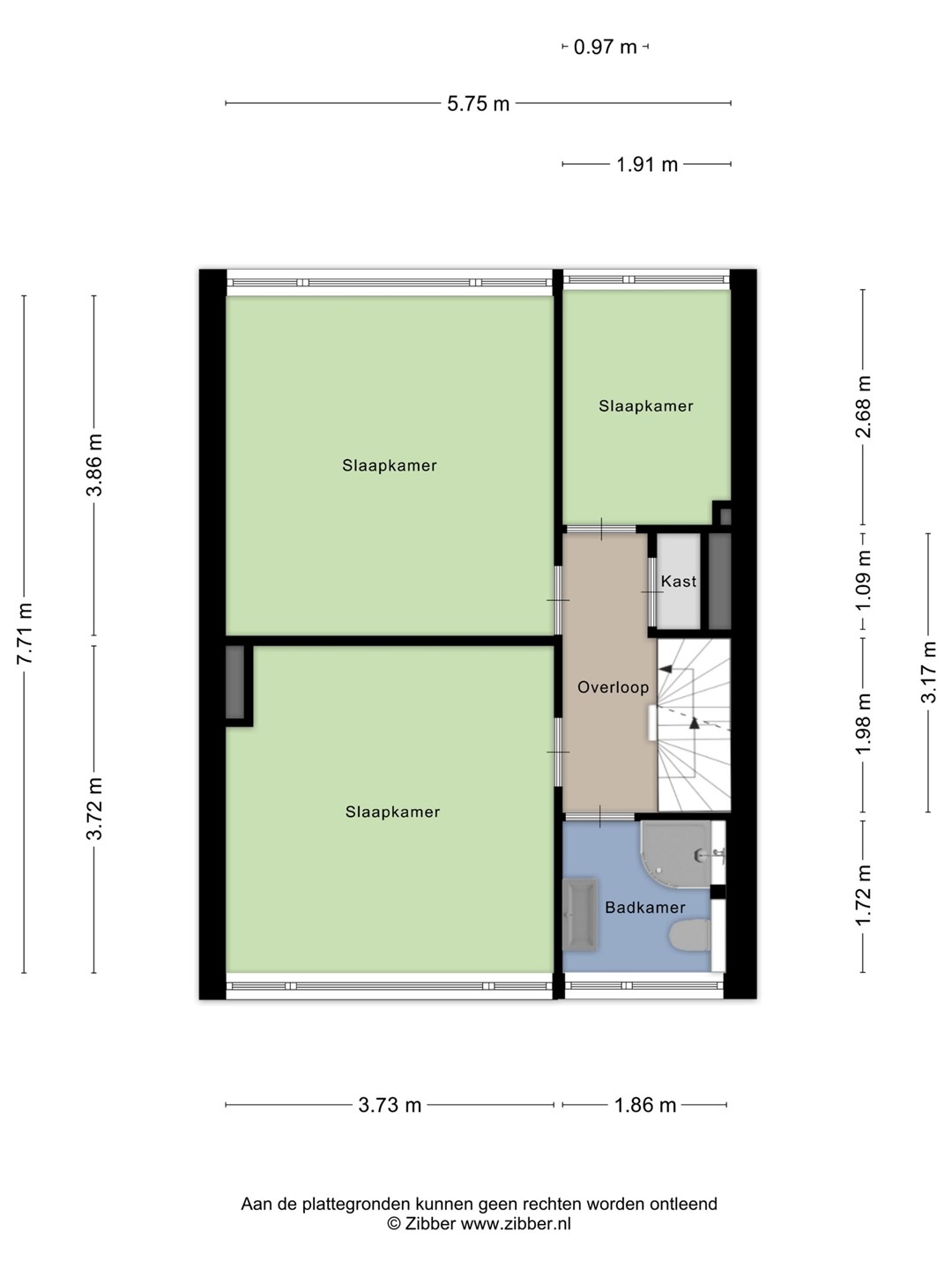
1e verdieping:
Overloop, 3 goede slaapkamers, badkamer met douche, 2e toilet en wastafel met meubel.
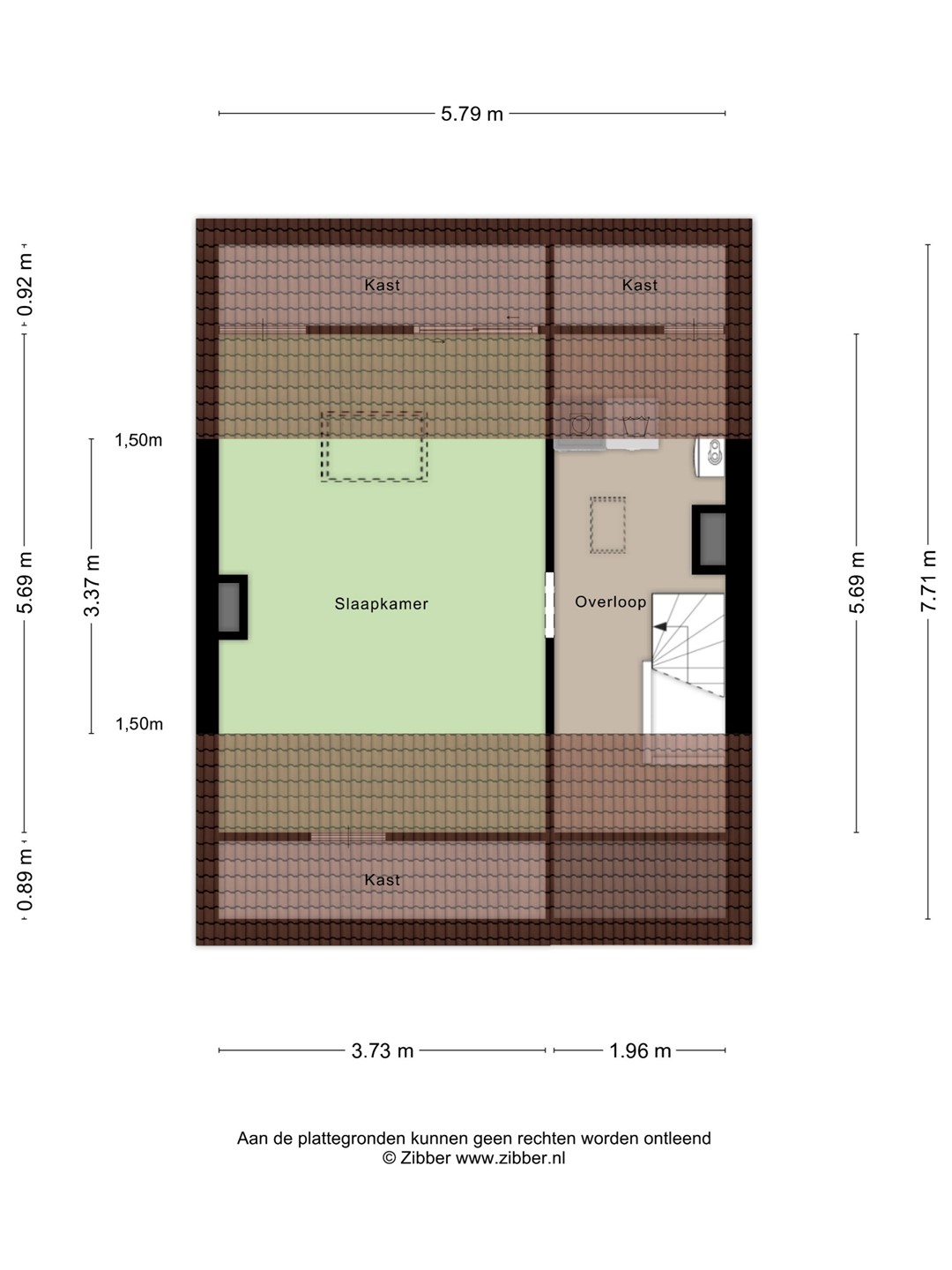
2e verdieping:
Overloop met de opstelplaats voor de was/ droogcombinatie en de cv combiketel en omvormer voor de zonnepanelen, ruime zolder kamer met dakraam (voor en achter mogen voorzien worden van een dakkapel).

Bijzonderheden:
Energielabel C
goed onderhouden (binnen en buiten)
voor en achter veel privacy
4 slaapkamers
veel parkeergelegenheid
7 zonnepanelen

Kaart

Kenmerken

Overdracht

Referentienummer
726
Vraagprijs
€ 585.000,- k.k.
Status
Verkocht onder voorbehoud
Aanvaarding
In overleg
Aangeboden sinds
Vrijdag 27 februari 2026
Laatste wijziging
Vrijdag 3 april 2026

Bouw

Type object
Woonhuis, eengezinswoning, tussenwoning
Soort bouw
Bestaande bouw
Bouwperiode
1961
Dakbedekking
Dakpannen
Type dak
Zadeldak
Isolatievormen
Dubbel glas
HR-glas

Oppervlaktes en inhoud

Perceeloppervlakte
144 m²
Woonoppervlakte
108 m²
Inhoud
381 m³
Oppervlakte externe bergruimte
11,3 m²

Indeling

Aantal bouwlagen
3
Aantal kamers
5 (waarvan 4 slaapkamers)
Aantal badkamers
1 (en 1 apart toilet)

Locatie

Ligging
Aan rustige weg
In woonwijk

Tuin

Type
Achtertuin
Hoofdtuin
Ja
Oriëntering
Zuidoost
Heeft een achterom
Ja
Staat
Normaal
Tuin 2 - Type
Voortuin
Tuin 2 - Oriëntering
Noord west
Tuin 2 - Staat
Normaal

Energieverbruik

Energielabel
C

CV ketel

Warmtebron
Gas
Combiketel
Ja
Eigendom
Eigendom

Uitrusting

Warm water
CV-ketel
Verwarmingssysteem
Centrale verwarming
Open haard
Ventilatie methode
Mechanische ventilatie
Badkamervoorzieningen
Douche
Toilet
Wastafel
Wastafelmeubel
Heeft een open haard
Ja
Tuin aanwezig
Ja
Beschikt over een internetverbinding
Ja
Heeft schuur/berging
Ja
Heeft een schuifpui
Ja
Heeft zonnepanelen
Ja
Heeft ventilatie
Ja

Kadastrale gegevens

Kadastrale aanduiding
Voorschoten B 6414
Perceeloppervlakte
144 m²
Omvang
Geheel perceel
Eigendomsituatie
Eigen grond