Verkocht:Van Beethovenlaan 39, 2253 BE Voorschoten - Foto
Verkocht
+18

Van Beethovenlaan 39 2253 BE Voorschoten

  • Appartement
  • 4 kamers
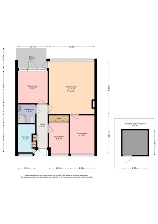
  • 3 slaapkamers
  • 1 badkamers
  • Bouwjaar 1960
  • 68 m² gebruiksoppervlakte
  • D Energielabel D

Beschrijving

Dit royale appartement aan de Van Beethovenlaan 39 in Voorschoten biedt alles wat u nodig heeft voor een comfortabel en modern leven. Met een ruime woonkamer, een dichte keuken, 3 slaapkamers, een balkon en een externe berging, is deze woning een perfecte match voor iedereen die op zoek is naar een stijlvolle en praktische woonruimte. Kom langs en ontdek zelf de charme van dit prachtige appartement die je nog helemaal naar je eigen hand kunt zetten!

Buurt:
Van Beethovenlaan 39 is gelegen in een rustige en groene wijk van Voorschoten. De buurt staat bekend om zijn vriendelijke en gemoedelijke sfeer. Op korte afstand vindt u diverse supermarkten, winkels en eetgelegenheden voor al uw dagelijkse boodschappen en uitjes. De wijk biedt ook diverse sportfaciliteiten en clubs voor een actieve levensstijl. Bovendien is de bereikbaarheid uitstekend, met nabijgelegen bushaltes en treinverbindingen die zorgen voor een vlotte aansluiting naar omliggende steden. Uitvalswegen richting Den Haag, Leiden en Amsterdam zijn snel en gemakkelijk bereikbaar, wat de locatie ideaal maakt voor zowel werk als ontspanning.

Entree:
Via de gezamenlijke ingang betreedt u het complex waar de woning zich bevindt. Bij binnenkomst in de woning staat u in de hal, welke grenst aan alle ruimtes in de woning. De hal biedt een praktische doorgang naar de verschillende vertrekken van het appartement.

Woonkamer:
Een ruime woonkamer met een open indeling verwelkomt u met veel natuurlijk daglicht dankzij de vele ramen. Deze ruimte biedt voldoende mogelijkheden voor het inrichten van een royale zithoek en een eetkamer. Tevens is er een directe toegang tot het balkon, waardoor binnen en buiten naadloos in elkaar overlopen.

Keuken:
De keuken, grenzend aan de hal, beschikt over een langwerpig aanrechtblad en is voorzien van diverse losse apparatuur. Deze keuken is eenvoudig en u kunt deze geheel moderniseren en er je eigen style aan te voegen.

Twee slaapkamers aan de voorzijde van de woning die desgewenst als kantoorruimte, inloopkast of bergruimte kan fungeren. Ook deze kamer is goed onderhouden en biedt diverse gebruiksmogelijkheden. Aan de achterzijde is nog 1 slaapkamer.

Badkamer:
De badkamer, grenzend aan de hal, is betegeld en is praktisch ingericht. Er is een douchecabine aanwezig, evenals een wastafel met spiegel en een opbergmeubel. Hiermee is de badkamer instapklaar en voorzien van een staand toilet voor optimaal gebruiksgemak.

Buitenruimte:
Vanuit de woonkamer heeft u toegang tot het balkon, de ideale plek om van de zon te genieten met uitzicht op groenvoorzieningen. Het balkon is ruim genoeg om een lounge set of buitentafel te plaatsen, waardoor het een perfecte buitenruimte is voor ontspanning.

Bijzonderheden:

- 4 kamer appartement
- Ruime woonkamer met veel natuurlijk daglicht
- Ruim balkon met ligging op zuidoosten en vrij uitzicht op het groen.
- Externe berging
- Gelegen in een rustige en groene wijk met goede voorzieningen
- Uitstekende bereikbaarheid met openbaar vervoer en uitvalswegen
- Servicekosten € 183,- per maand,
- Voorschot stookkosten € 50,- per maand.

Kaart

Kenmerken

Overdracht

Referentienummer
664
Vraagprijs
€ 349.000,- k.k.
Servicekosten
€ 183,-
Verwarming
€ 50,-
Status
Verkocht
Aanvaarding
In overleg
Aangeboden sinds
Woensdag 7 mei 2025
Laatste wijziging
Dinsdag 22 juli 2025

Bouw

Type object
Appartement, galerijflat
Woonlaag
1e woonlaag
Soort bouw
Bestaande bouw
Bouwperiode
1960
Dakbedekking
Bitumen
Type dak
Platdak
Isolatievormen
Gedeeltelijk dubbel glas

Oppervlaktes en inhoud

Woonoppervlakte
68 m²
Inhoud
212 m³
Oppervlakte externe bergruimte
6 m²
Oppervlakte gebouwgebonden buitenruimte
6 m²

Indeling

Aantal bouwlagen
1
Aantal kamers
4 (waarvan 3 slaapkamers)
Aantal badkamers
1

Locatie

Ligging
Aan rustige weg
Dichtbij openbaar vervoer
In woonwijk
Nabij winkelcentrum

Energieverbruik

Energielabel
D

Uitrusting

Warm water
Geiser
Verwarmingssysteem
Blokverwarming
Ventilatie methode
Mechanische ventilatie
Badkamervoorzieningen
Douche
Toilet
Wastafel
Heeft een balkon
Ja
Heeft kabel-tv
Ja
Heeft schuur/berging
Ja
Heeft ventilatie
Ja

Vereniging van Eigenaren

Ingeschreven bij de KvK
Ja
Jaarlijkse vergadering
Ja
Periodieke bijdrage
Ja
Reservefonds
Ja
Meer jaren onderhoudsplan
Ja
Opstal verzekering
Ja

Kadastrale gegevens

Kadastrale aanduiding
Voorschoten A 4925
Omvang
Appartementsrecht of complex
Eigendomsituatie
Eigen grond

Media

Plattegronden